Para que serve um projeto?
O projeto é uma descrição escrita e detalhada de um empreendimento a ser realizado. O processo de projeto envolve pesquisa e representação gráfica através do desenho e tem como objetivo final alcançar um resultado desejado e exclusivo.
Para isso, o arquiteto deve fazer uma entrevista com o cliente (chamada briefing) para entender a rotina da família, quantos moradores, se tem pet, estilo na decoração, gostos e Hobbies.
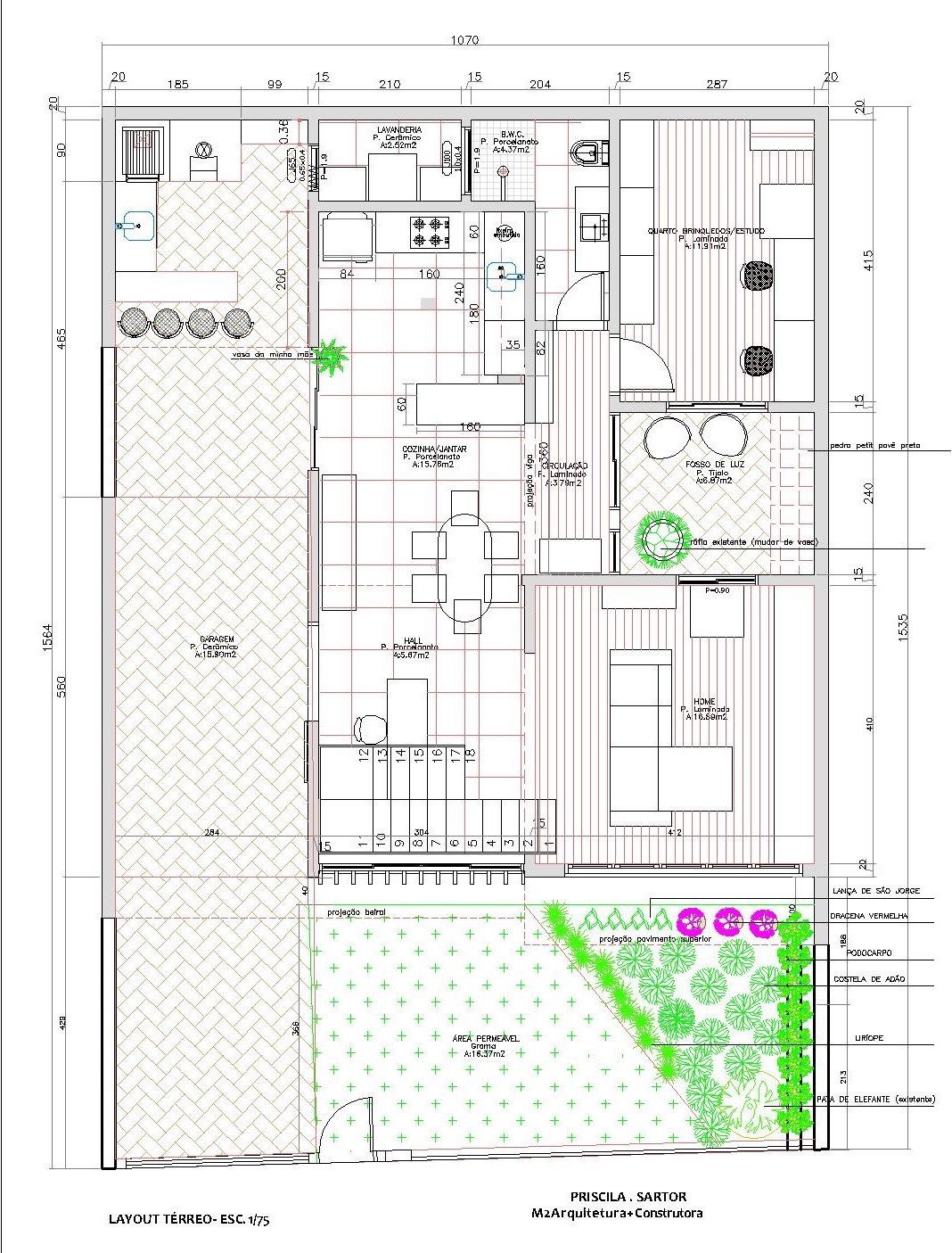
![]() |
| Layout Mobiliado da CASA MM - PAVIMENTO TÉRREO |
Quanto mais detalhes o projeto tiver, melhor será para executar a obra sem erros e prejuízos. E isso tudo aliado a um orçamento detalhado da obra é a combinação certa para uma construção alinhada ao cronograma de obras sem dor de cabeça e atrasos.
O arquiteto ou engenheiro faz com que a obra saia dentro do prazo, sem prejuízos e no valor que o cliente quer gastar.
Esse é um exemplo do layout que faz parte do item Anteprojeto no processo de projeto de arquitetura. Você conhece todas as etapas do Projeto Arquitetônico?
Check list do Projeto de Arquitetura:
- Briefing: etapa que consiste em realizar uma reunião com os clientes para a análise, discussão e entendimento de referências e condicionante de projeto de forma a delinear da melhor maneira possível um cenário que atenda às expectativas da família;
- Estudo preliminar: contempla o esboço inicial e apresentação das ideias gerais do projeto de acordo com o programa de necessidades apresentado na primeira etapa. a apresentação dessa etapa é feita por meio de: plantas de layout e imagens 3D básicas;
- Estudo de Viabilidade Financeira: constitui-se pelo levantamento de quantidades e valores dos insumos, mão de obra e equipamentos para a execução de obra civil;
- Projeto legal: serão entregues os desenhos técnicos necessários para aprovação do projeto de arquitetura nos órgãos competentes;
- Compatibilização dos projetos: esta etapa consiste na compatibilização do projeto de arquitetura com os projetos complementares necessários para a edificação em questão, e só termina quando todos os projetos estiverem em concordância, evitando assim, erros na execução de obra;
- Anteprojeto: serão realizadas reuniões em conjunto com os clientes para aprovação e definição de detalhes de projeto, incluindo padrões de revestimentos, layout final, esquadrias, marcenarias, áreas molhadas e outros que sejam necessários.a apresentação desta etapa será feita por meio de:
- planta de layout;
- planta construtiva;
- planta de paginação de piso;
- planta luminotécnica;
- mapa de instalações elétricas;
- mapa de instalações hidráulicas;
- mapa de ar condicionado;
- planta de cobertura com indicação de caixa d`água, seus acessos e fechamentos, caso existam.
- Imagens 3D: constitui-se de uma etapa em que são apresentadas as principais imagens para representação do projeto em questão de forma realística.
Quer reformar ou construir? Conte conosco! Realizamos o seu sonho sem prejuízos e sem dor de cabeça. Contato na BIO. ou faça o seu briefing aqui: https://www.refresher.com.br/7462/briefing


Comentários
Postar um comentário